ID CP2246977

Penthouse Vedere Exceptionala | Dumbrava Rosie | Gradina Icoanei

ID CP2246977

2,600,000 €

Apartament cu 4 camere de vânzare
Gradina Icoanei, Bucuresti
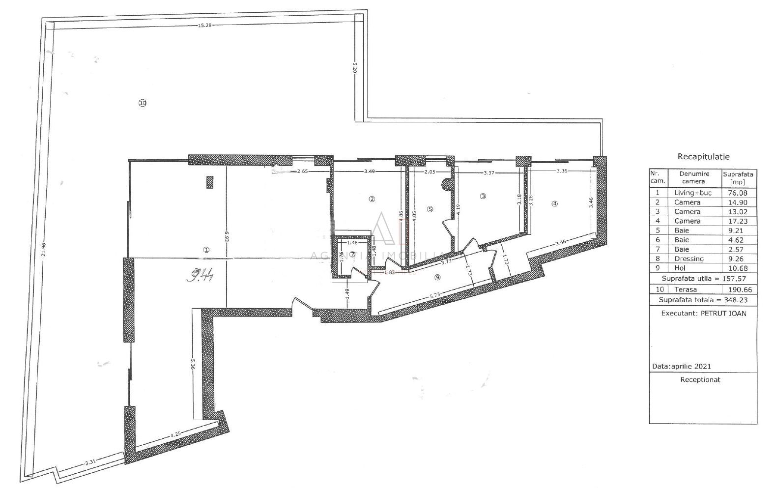
157.57 mp
2021

Descoperă eleganța și exclusivitatea – Penthouse în Grădina Icoanei

Situat în inima unuia dintre cele mai prestigioase cartiere ale Bucureștiului, Grădina Icoanei, acest penthouse oferă o combinație perfectă între luxul contemporan și farmecul unei zone istorice. Recunoscută pentru atmosfera sa boemă, proximitatea față de parcuri liniștite, restaurante de top și atracții culturale, locația este ideală pentru cei care își doresc rafinament și conectivitate urbană.

Un spațiu generos, perfect compartimentat

Proprietatea oferă 157 mp utili, inteligent organizați pentru a separa elegant zonele de zi și de noapte:

• Living și bucătărie open space de 76 mp, inundate de lumină naturală datorită ferestrelor generoase. Designul modern creează o atmosferă aerisită și sofisticată, ideală pentru momente de relaxare sau socializare.

• Fiecare cameră are acces direct pe terasa panoramică, amplificând senzația de spațiu deschis și conectând interiorul cu exteriorul.

Zona de noapte

• Dormitor matrimonial cu dressing spațios și baie proprie, amenajate pentru confort și intimitate.

• Al doilea dormitor cu baie proprie, perfect pentru familie sau oaspeți.

• Dormitor suplimentar, ce poate fi utilizat și ca birou.

• Toaletă de serviciu, modernă și elegantă, pentru oaspeți.

Terasa – Destinația perfectă pentru momente memorabile

Terasa impresionantă de 190 mp înconjoară întregul apartament, oferind o vedere de 360° asupra cartierului Grădina Icoanei. Amenajată cu materiale de calitate, aceasta este ideală pentru:

• Seri de entertainment: petreceri private, grătare sau cine în aer liber.

• Relaxare și liniște: locuri perfecte pentru mobilier de lounge, o grădină urbană sau chiar un jacuzzi.

• Priveliște spectaculoasă, ce transformă orice moment petrecut aici într-o experiență unică.

Rafinament și detalii premium

• Parchet triplustratificat și ferestre tripan cu tâmplărie din aluminiu, pentru un confort termic și fonic desăvârșit.

• Obiecte sanitare de la branduri premium și finisaje moderne, de calitate superioară.

• Clădirea combină armonios istoria cu modernitatea, fiind o extensie a unei construcții vechi complet restaurate.

Facilități exclusiviste:

• Spații comune elegante, proiectate cu atenție la detalii.

• Parcare subterană generoasă, cu acces rapid.

• Lifturi moderne și sigure.

Locație de excepție

În doar câteva minute, te poți bucura de:

• Parcurile liniștite Grădina Icoanei și Ioanid.

• Restaurante și cafenele exclusiviste.

• Proximitatea față de școli internaționale, Piața Romană, Calea Floreasca și atracții culturale precum Muzeul Național de Artă.

Acest penthouse este mai mult decât o locuință – este o declarație de stil, confort și exclusivitate.

Citește mai mult

  • Tip apartament
    Apartament
  • Compartimentare
    Decomandat
  • Număr camere
    4
  • Dormitoare
    3
  • Număr bucătării
    1
  • Număr băi
    3
  • Geam la baie
    Da
  • Etaj
    4
  • Suprafață utilă
    157.57 mp
  • Suprafață construită
    372 mp
  • Suprafață totală
    348 mp
  • Suprafață terasă
    190.66 mp
  • Disponibilitate
    Imediat
  • Confort
    Lux
  • Stare interior
    Ultrafinisat
  • Număr terase
    1
  • Imobil
    Bloc de apart.
  • Stadiu construcție
    Finalizată
  • An construcție
    2021
  • Construcție nouă
    Da
  • Număr etaje clădire
    4

Facilități

Aer condiționat
Apă
Cabină de duș
Cadă
Canalizare
CATV
Centrală imobil
Curent
Dressing
Ferestre aluminiu
Garaj subteran
Gaz
Geamuri tripan
Iluminat stradal
Încălzire prin pardoseală
Internet
Mijloace de transport în comun
Pază
Străzi asfaltate
Telefon
Vedere panoramică
Videointerfon
Miruna Matei - Agenția Imobiliară AI
Miruna Matei

+40373811029


Solicită chiar acum o vizionare
Telefon
Sună acum Solicită vizionare
Necesare:

Site-ul nu poate funcționa corect fără aceste cookie-uri. Vezi cookie-urile

Statistică:

Strângem statistici anonime despre voi, vizitatorii unici, pentru a vă îmbunătăți experiența dumneavoastră. Vezi cookie-urile

Marketing:

Pentru a ne promova mai eficient serviciile noastre, folosim cookies pentru a vă identifica și a vă oferi proprietăți și servicii personalizate. Vezi cookie-urile

Acest site folosește cookies, află detalii. Alege ce tipuri de cookies dorești să permitem: