ID CP2860946

Vila Baneasa Sisesti | Ansamblu Rezidential Gated Community

ID CP2860946

592,000 € + 21% TVA

Casă / Vilă cu 5 camere de vânzare
Baneasa, Bucuresti
195 mp
2025

Va propunem spre achizitie o vila de 5 camere, localizata in zona Baneasa Sisesti, intr-un ansamblu rezidential tip gated community.

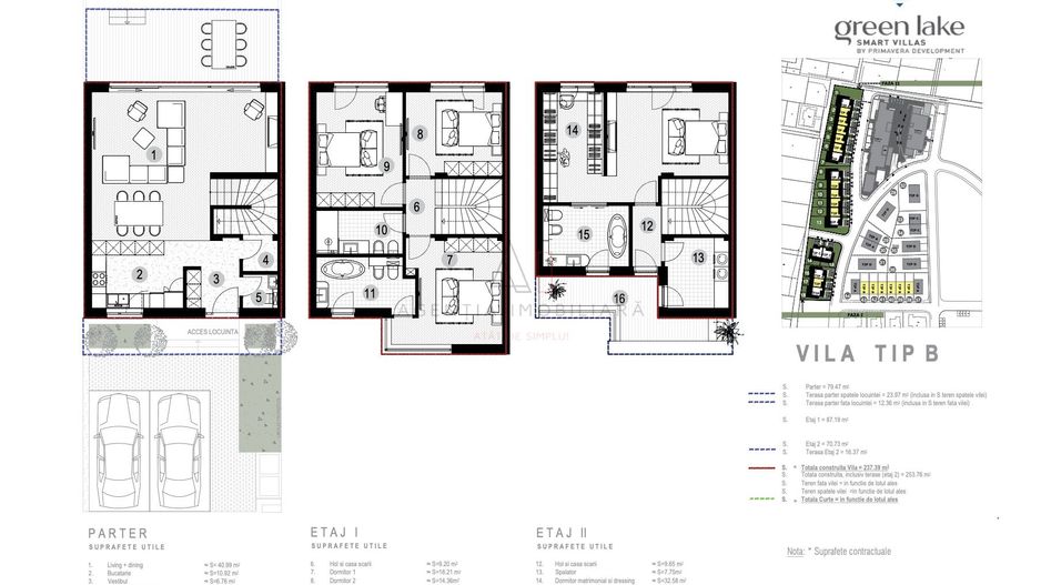
Vila are o suprafata utila de aproximativ 195 mp, fiind amplasata pe un teren de 213.45 mp, cu amprenta la sol de 78 mp, structurata P+2.

In fata exista 2 locuri de parcare iar partea din spate a vilei dispune de o terasa si o gradina de aproximativ 40 mp.

Compartimentarea este semidecomandata. Parterul are bucatarie open space, living si o toaleta de serviciu, cat si iesirea catre terasa si gradina. Etajul 1 dispune de 3 dormitoare, dintre care unul cu baie proprie si inca o baie. La etajul 2 se regaseste o zona spatioasa de 32.58 mp care poate fi folosita ca si dormitor, birou, camera de recreere, etc. De asemenea, etajul 2 dispune de baie si camera tehnica cat si iesirea pe balcon.

Finisajele includ parchet triplustratificat si ceramica de calitate in bai. Incalzirea este oferita de pompa de caldura, prin pardoseala, iar racirea se face prin intermediul ventiloconvectoarelor. De asemenea, pe acoperis exista panouri fotovoltaice.

Vila este insiruita, fiind pe mijloc, insa exista atat optiuni de colt cat si vile individuale disponibile la vanzare.

Finalizarea este estimata pentru decembrie 2026, iar pretul afisat este pentru plata anticipata, pe stadii de constructie.

La pretul afisat se adauga TVA ptr achizitie pe persoana fizica sau taxare inversa pentru achizitia pe persoana juridica.

Pozele sunt cu titlu de informare, vilele se vand complet finisate, nemobilate.

COMISIONUL LA ACHIZITIE ESTE DE 0%!

Pentru detalii si vizionari, sunati-ne chiar acum!

Situat strategic in nordul Sectorului 1, Green Lake by Primavera Development ofera o experienta unica de locuire, imbinand confortul urban cu frumusetea naturala a zonei. Apartamentele noastre spatioase si moderne ofera un stil de viata exclusivist, inconjurat de priveliști uimitoare si de o atmosfera relaxanta.

Cele doua blocuri de apartamente cu regim de inaltime redus (S+P+3 și S+P+4), alaturi de vilele individuale si insiruite, satisfac o multitudine de nevoi locative, de la apartamente tip studio pana la cele cu 2, 3 sau 4 camere. Fiecare varianta aduce cu sine o poveste aparte a confortului si luxului, cu o nota minimalist - eleganta.

Citește mai mult

  • Număr camere
    5
  • Dormitoare
    4
  • Număr bucătării
    1
  • Număr băi
    4
  • Geam la baie
    Da
  • Număr balcoane
    1
  • Număr terase
    1
  • Număr locuri parcare
    2
  • Disponibilitate
    Imediat
  • Tip casă
    Case înșiruite
  • Stare interior
    Ultrafinisat
  • Suprafață utilă
    195 mp
  • Suprafață construită
    228.91 mp
  • Suprafață construită la sol (Amprentă)
    78.0 mp
  • Suprafață teren
    213.45 mp
  • Suprafață curte
    213.45 mp
  • Suprafață curte liberă
    135 mp
  • Suprafață terasă
    20.85 mp
  • Acoperiș
    Terasă
  • Stadiu construcție
    În construcție
  • An construcție
    2025
  • Construcție nouă
    Da
  • Tip construcție
    Cărămidă
  • Număr etaje clădire
    2

Facilități

Aer condiționat
Apă
Bucătărie deschisă
Cabină de duș
Cadă
Canalizare
CATV
Curent
Dressing
Faianță
Ferestre aluminiu
Gaz
Geamuri tripan
Grădină proprie
Gresie
Iluminat stradal
Încălzire prin pardoseală
Internet
Mijloace de transport în comun
Parcare deschisă
Parchet
Pază
Pază permanentă
Piscină exterioară
Pompă de căldură
Spații agrement
Străzi asfaltate
Supraveghere video
Telefon
Ușă intrare metal
Uși interior MDF
Vedere spre oraș
Ventiloconvectoare
Vopsea lavabilă
Miruna Matei - Agenția Imobiliară AI
Miruna Matei

+40373811029


Solicită chiar acum o vizionare
Telefon
Sună acum Solicită vizionare
Necesare:

Site-ul nu poate funcționa corect fără aceste cookie-uri. Vezi cookie-urile

Statistică:

Strângem statistici anonime despre voi, vizitatorii unici, pentru a vă îmbunătăți experiența dumneavoastră. Vezi cookie-urile

Marketing:

Pentru a ne promova mai eficient serviciile noastre, folosim cookies pentru a vă identifica și a vă oferi proprietăți și servicii personalizate. Vezi cookie-urile

Acest site folosește cookies, află detalii. Alege ce tipuri de cookies dorești să permitem: