ID CP2642495

Maison Petit Paris | Vila Interbelica Dacia Polona

ID CP2642495

829,000 €

Casă / Vilă cu 5 camere de vânzare
Dacia, Bucuresti
242 mp
1921

Maison Petit Paris este o proprietate cu arhitectură interbelică din 1921, complet consolidată și renovată între 2023–2024, situată într-o zonă centrală, cu acces rapid către bulevardele principale ale Capitalei. Îmbină farmecul clasic cu intervenții moderne și oferă o structură solidă, compartimentare eficientă și multiple posibilități de utilizare – de la reședință de familie la spațiu profesional reprezentativ.

Date tehnice:

An construcție: 1921

Teren: 255 mp

Amprentă la sol: 89 mp

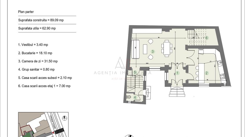
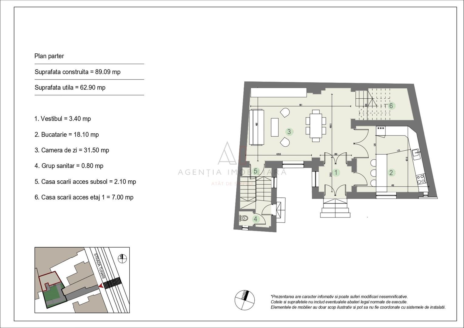
Suprafață utilă: 242 mp

Suprafață construită desfășurată: 334 mp

Regim de înălțime: Subsol + Parter + Etaj + Mansardă

Detalii structurale și finisaje:

Clădire consolidată structural și renovată complet în perioada 2023–2024

Parchet original restaurat în zonele principale

Tâmplărie din aluminiu cu geam tripan, adaptată arhitecturii clădirii

Instalații electrice și sanitare noi

Încălzire în pardoseală la mansardă și în băi

Băile și mansarda sunt pregătite pentru personalizare

Scările exterioare sunt nefinisate, oferind libertate estetică

Două căi de acces: principală și secundară

Compartimentare funcțională:

La subsol, regăsim trei încăperi tehnice și o baie completă, cu acces secundar din exterior – spațiul se pretează perfect pentru amenajări precum sală de fitness, cameră de spălătorie, arhivă sau cramă de vinuri.

La parter, se află o zonă de living spațioasă, o bucătărie deschisă (cu posibilitatea de a fi închisă) și o toaletă de serviciu, cu acces direct către scara interioară.

La etajul 1, vila dispune de un hol central și două dormitoare generoase, de 19,7 mp și 22 mp, fiecare cu baie proprie cu fereastră, pentru confort sporit și intimitate.

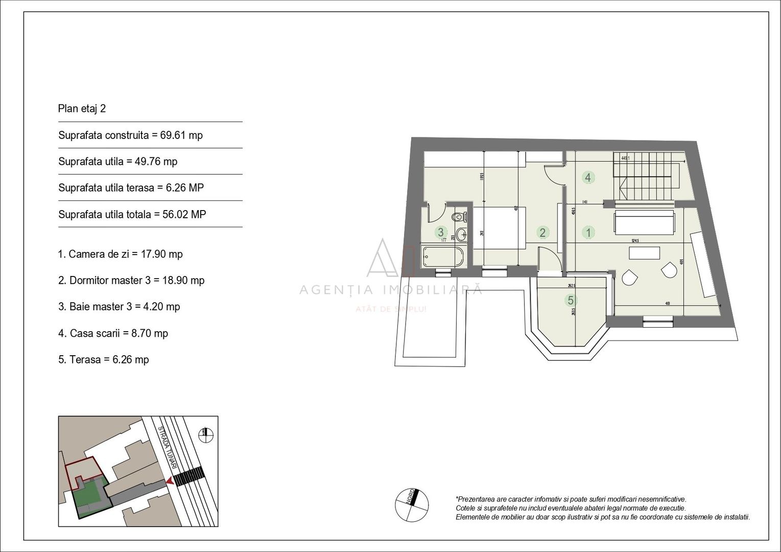
La mansardă, avem un dormitor cu baie proprie, lumină naturală și o zonă multifuncțională deschisă, ideală pentru recreere, birou, activitate creativă sau hobby.

Acces și exterior:

Accesul se face prin cale de servitute, prevăzută cu poartă automată

Curte amenajată peisagistic, cu locuri de parcare pentru 3–4 mașini

Fațadă restaurată, cu detalii arhitecturale păstrate și armonizate cu finisaje neutre

Intrare principală marcată de un portic geometric și un corp central poligonal

Maison Petit Paris este o alegere potrivită pentru locuință, dar și pentru activitate profesională – precum birou notarial, sediu de firmă sau clinică boutique. Compartimentarea clară între zonele de zi și de noapte, alături de flexibilitatea spațiilor, oferă un cadru versatil, ușor de adaptat nevoilor actuale.

Pentru detalii si vizionari va stam la dispozitie!

Citește mai mult

  • Număr camere
    5
  • Dormitoare
    3
  • Număr bucătării
    1
  • Număr băi
    4
  • Număr balcoane
    2
  • Număr locuri parcare
    3
  • Disponibilitate
    Imediat
  • Tip casă
    Individual
  • Stare interior
    Semifinisat
  • Anul finisării
    2024
  • Suprafață utilă
    242 mp
  • Suprafață construită
    334 mp
  • Suprafață teren
    255 mp
  • Suprafață curte
    164 mp
  • Suprafață curte liberă
    164 mp
  • Suprafață terasă
    6.26 mp
  • Stadiu construcție
    Finalizată
  • An construcție
    1921
  • Tip construcție
    Cărămidă
  • Număr etaje clădire
    1
  • Număr subsoluri
    1
  • Are mansardă
    Da

Facilități

Acoperiș
Apă
Canalizare
CATV
Contor electric
Contor gaz
Curent
Curte
Ferestre aluminiu
Gaz
Geamuri tripan
Grădină proprie
Iluminat stradal
Internet
Mijloace de transport în comun
Nemobilat
Parcare deschisă
Parchet
Pivniță
Scară interioară
Străzi asfaltate
Telecomandă poartă acces auto
Telefon
Ușă intrare lemn
Vedere spre oraș
Ventiloconvectoare
Vopsea lavabilă
WC Serviciu
Miruna Matei - Agenția Imobiliară AI
Miruna Matei

+40373811029


Solicită chiar acum o vizionare
Telefon
Sună acum Solicită vizionare
Necesare:

Site-ul nu poate funcționa corect fără aceste cookie-uri. Vezi cookie-urile

Statistică:

Strângem statistici anonime despre voi, vizitatorii unici, pentru a vă îmbunătăți experiența dumneavoastră. Vezi cookie-urile

Marketing:

Pentru a ne promova mai eficient serviciile noastre, folosim cookies pentru a vă identifica și a vă oferi proprietăți și servicii personalizate. Vezi cookie-urile

Acest site folosește cookies, află detalii. Alege ce tipuri de cookies dorești să permitem: